Notice: Undefined index: HTTP_ACCEPT_LANGUAGE in /var/www/allinimmo.be/www/config.php on line 264
Parcelle à 38.000€ avec permis accepté en quartier prisé - Impression
Logo agence
ALL IN IMMO
Rue de Marchienne, 59b, 6534 Gozée
GSM : 0487/341654
Mail : info@allinimmo.be

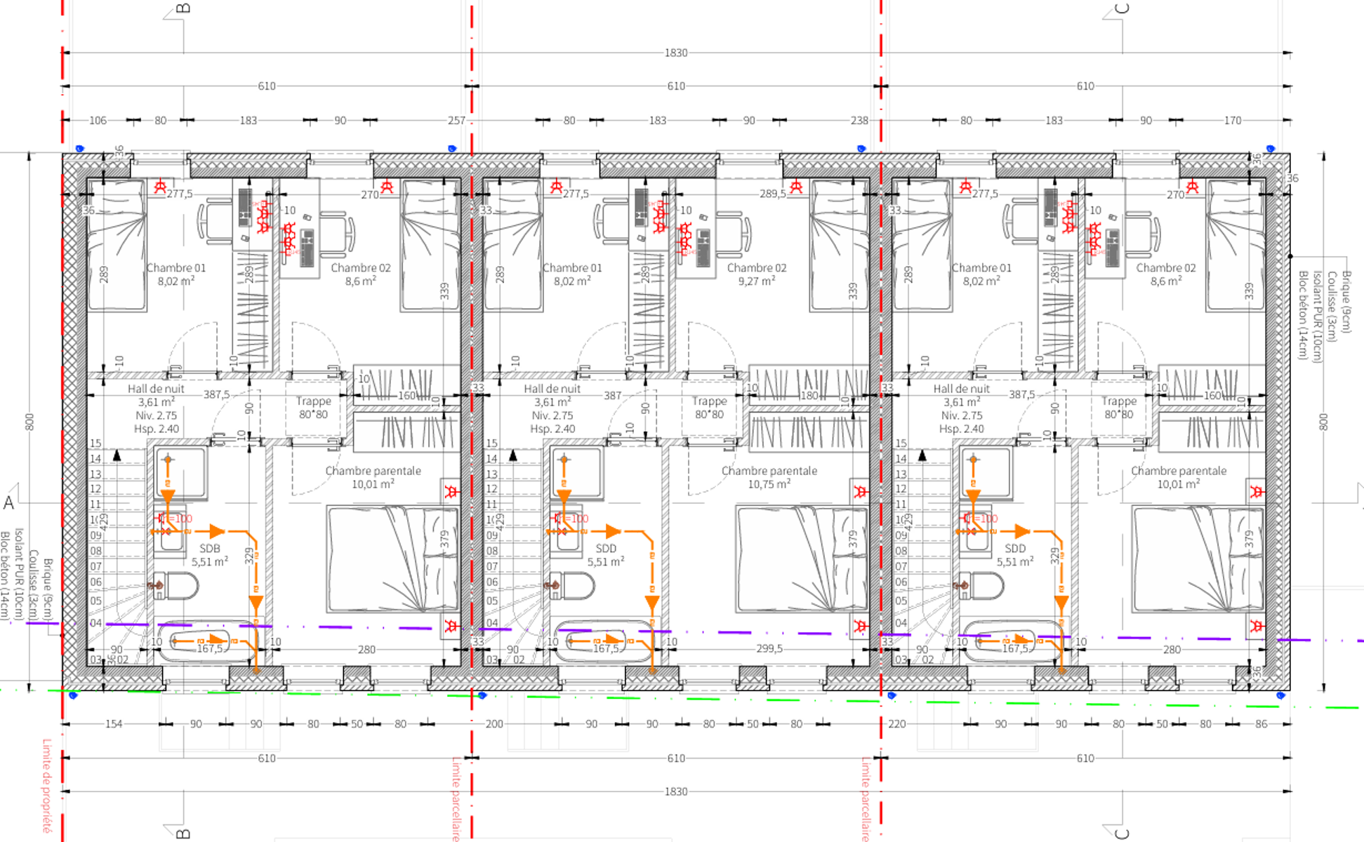
Parcelle à 38.000€ avec permis accepté en quartier prisé

Rue du Bruliau 22, 7120 Estinnes, Belgique

Photo Photo Photo Photo Photo Photo

Caractéristiques principales

ID : 7281251
Prix : 38 000 €
Chambre : 0
Type : terrain à bâtir (projets)
Disponibilité : à l'acte
Statut : à vendre

Description

Informations complémentaires

Magasins : Oui
Ecoles : Oui
Transports en commun : Oui
Centre sportif : Oui
Autoroute : Oui
Profondeur terrain : 50 m
Sous régime TVA : Non
Affectation urbanistique : zone d'habitat
Servitude : Non
Permis de bâtir : Oui
Permis de lotir : Oui
Destination bâtiment : privé - unifamilial
Bien en construction : Oui
Maison passive : Oui
égouts : Oui
électricité : Oui
Gaz : Oui
Eau : Oui
Type d'environnement : calme
Type d'environnement 2 : campagne